西宮市の事務機OA機器販売会社「OA機器、事務機のスギタ」のホームページへようこそ!!
パソコン・複合機・通信機器・事務機器・OA機器・メンテナンス保守サービス・オフィス経費削減コンサルティング

オフィスプランナーのお仕事


・オフィスの物件の案内
・オフィスプランニング
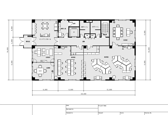
・レイアウト平面図作成
・3Dレイアウト作成
・オフィス家具販売
・改装工事・内装工事
・レイアウト変更
・お引越しのお手伝い
・OAフロア工事
・セキュリティ工事
・ペストオピニオンにより消毒、環境衛生
現在レイアウトプラン進行中

これらのお仕事をプランニングから施工、アフターサービスまで
幅広くお客様をサポートいたします!!

オフィス物件の提供

お客様のご要望や予算をヒアリング。現地調査。資料調査。
御社へ訪問し、オフィスの環境などを調査したり、ご要望をヒアリングいたします。
ご要望の物件情報、オフィス家具や材料などの情報資料を提供いたします。


オフィスプランニング・ご提案

お客様のご要望や予算をヒアリング。現地調査。資料調査。
お客様のニーズに合った物件・設計プランをご提案。また移転までのスケージュール管理
も当社で行います。御見積書や図面も提出いたします。


施工サービス

移転や施工などの工事全般お引き受け
移転に伴う内装・電話・電気・LAN工事など各種工事だけでなく、
現事務所の原状回復工事を含むサービスをワンストップで行います。


アフターサポート

お客様のオフィスの様々な問題、トラブルをサポート
オフィス内に問題点がございましたらお客様を訪問し、様々な諸問題の解決に努めます。
オフィス家具以外にもパソコンやネットワークのOA環境も合わせて保守サポートいたします。